EXPOSIÇÃO 'MATEMÁTICA VIVA'

ESCRITÓRIO

OBRAS E PROJECTOS

2000-01   (design gráfico dos painéis do Escultor João Machado)
Pavilhão do Conhecimento, Parque das Nações, Lisboa
Obra Construída
Associação Atractor - Matemática Interactiva

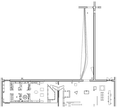
 PLANTA/ CORTES/ ALÇADOS

ESQUISSOS

MODELO 3D

FOTOGRAFIAS

MEMÓRIA DESCRITIVA

Planta Geral                                                   

JOÃO PEDRO XAVIER - ARQUITECTO, LDA