EDIFÍCIO DE HABITAÇÃO E COMÉRCIO

ESCRITÓRIO

OBRAS E PROJECTOS

1996-99
Rua de Miragaia, 123/124, Porto
Obra Construída
Manuel Dias de Jesus

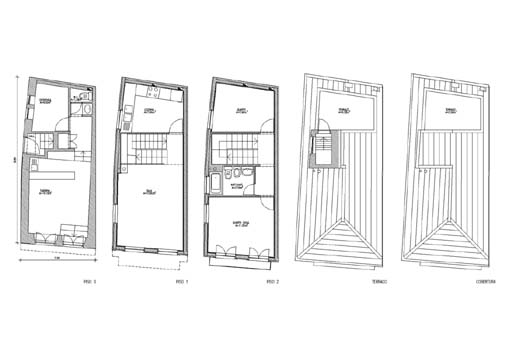
 PLANTA/ CORTES/ ALÇADOS

ESQUISSOS

MODELO 3D

FOTOGRAFIAS

MEMÓRIA DESCRITIVA

Plantas                         

JOÃO PEDRO XAVIER - ARQUITECTO, LDA