REMODELAÇÃO DE HABITAÇÃO UNIFAMILIAR

ESCRITÓRIO

OBRAS E PROJECTOS

1992-93   (projecto solicitado pelo Arqº Germano Castro Pinheiro)
Vila do Conde
Projecto Base
Ilídio Guimarães

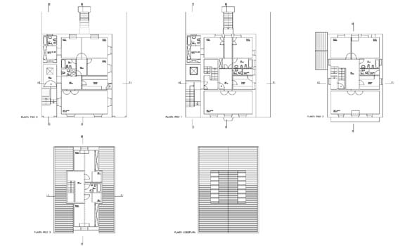
 PLANTA/ CORTES/ ALÇADOS

ESQUISSOS

MODELO 3D

FOTOGRAFIAS

MEMÓRIA DESCRITIVA

Plantas          

JOÃO PEDRO XAVIER - ARQUITECTO, LDA