REMODELAÇÃO DE HABITAÇÃO

ESCRITÓRIO

OBRAS E PROJECTOS

1992-93 
Rua Delfim Maia, 118, Porto
Obra Construída
Carlos Costa

 

PLANTA/ CORTES/ ALÇADOS

ESQUISSOS

MODELO 3D

FOTOGRAFIAS

MEMÓRIA DESCRITIVA

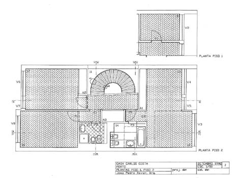
Planta Piso 1 e 2                                    

JOÃO PEDRO XAVIER - ARQUITECTO, LDA